Uygulama Resimleri
| Akustik Sünger Ebad | Yükseklik Kalınlık | DİN52212 Uygun Olarak Emme Faktörü | |||||
| mm | mm | 125 Hz | 250 Hz | 500 hz | 1000 Hz | 2000 Hz | 4000 Hz |
| 1000x1000 | 30 (30/10) | 0,10 | 0,21 | 0,54 | 0,90 | 0,98 | 0,93 |
| 1000x1000 | 40 (40/10) | 0,11 | 0,32 | 0,63 | 0,90 | 0,91 | 0,95 |
| 1000x1000 | 50 (50/10) | 0,16 | 0,54 | 1,01 | 0,90 | 1,01 | 1.02 |
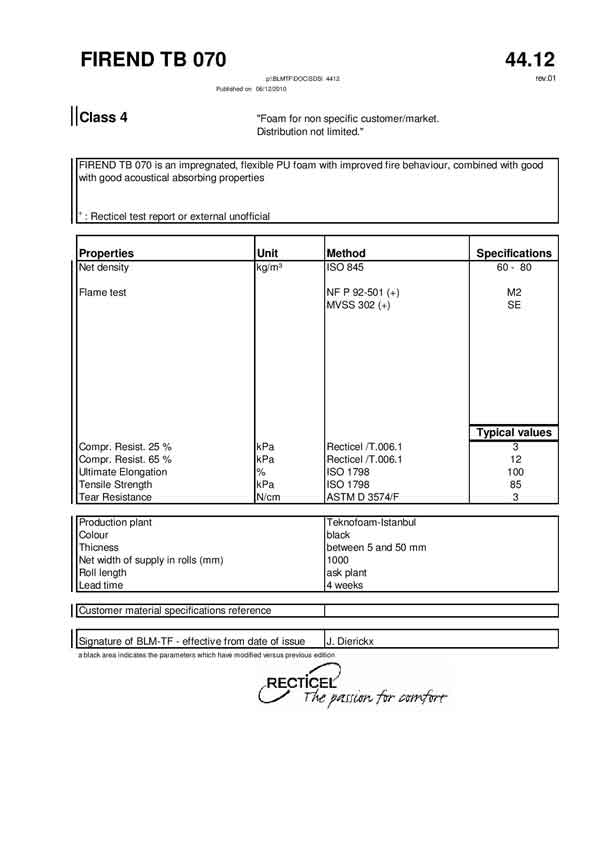
Yanmaz Labirent Sünger : Akustik yanmaz süngerler modellerinin labirent desenleri sayesinde içerisinde sesi tutarak yok etmeyi sağlar. Yanmaz labirent süngerler ses emiş ve yutuş gücüne sahip en profesyonel finish sünger malzemelerindendir. Hem dekoratif hemde ses yutucu sünger olmasından dolayı en çok tercih edilen akustik süngerlerdendir. Sesin içerde düzenleyerek yankı ve cızırtı gibi rahatsız edici sesleri yok etmeye sağlamaktadır. Yanmaz Labirent Süngerler satış ve pazarlaması Emin Akustik.
Yanmaz Labirent Sünger Ölçüleri : 100 cm x 100 cm Plaka ölçülerinde olup, 30 mm ve 40 mm parakende olarak satışa sunulmaktadır.
Yanmaz Labirent Sünger Paket İçeriği : Yanmaz labirent süngerler 100 cm x 100 cm ebat plaka 10 adet paket satılmaktadır. 1 Paket 10 m² Satılır.
Yanmaz Labirent Sünger Renk Çeşitleri : Siyah ( koyu andezit gri ) standart olarak satılır, renkli üretimi mümkündür.
Yanmaz Labirent Sünger Kullanım Alanları : Müzik odası, stüdyo, jeneratör kabini, radyo yayınevi, spor salonu, eğlence mekanları.
Yanmaz Labirent Sünger Üretim : Özel kalınlık 50 mm ve üzeri üretim mümkündür. Ebatlar özel kesim mümkündür. Renkler RAL kartelası
Yanmaz Labirent Sünger Yanmazlık : Alev almaz / yanmazlık Firend ; yanmazlıkta BS476 : class 0 ve Unı 9175 : 2008 M1 sertifikalarına sahiptir.
Yanmaz Labirent Sünger Yoğunluk : 50 ile 60 Kg / M³ İstenilen yoğunlukta ve kalınlıkta özel üretim mümkündür.
Not : 30 mm olan ürün 25 – 30 mm arasıdır, 40 mm ise 35 – 40 mm arası toleranslı kalınlıklardadır.


Benzer Ürünler :

















































































































































































































































































